
Diese gepflegte und lichtdurchflutete Maisonette-Eigentumswohnung im Dachgeschoss eines Mehrfamilienhauses befindet sich im beliebten Stadtteil Essen-Schönebeck (Borbeck). Mit einer großzügigen Wohnfläche von 105,03 m² bietet die Wohnung viel Platz und ein angenehmes Wohngefühl auf zwei Ebenen.
Die durchdachte Raumaufteilung schafft eine freundliche und einladende Atmosphäre. Besonders praktisch sind die integrierten Einbauschränke, die harmonisch in die Wände eingebaut sind und zusätzlichen Stauraum bieten.
Ein besonderes Highlight sind die zwei Tageslichtbadezimmer:
- Das größere Badezimmer ist mit einer komfortablen, leicht viereckigen Badewanne ausgestattet – perfekt für entspannende Momente.
- Das zweite Badezimmer bietet eine moderne Regendusche, ideal für erfrischende Duscherlebnisse. Beide Badezimmer verfügen über Fenster, die für Helligkeit und angenehme Belüftung sorgen.
Der Balkon lädt zu entspannten Stunden im Freien ein. Durch die Maisonette-Lage im Dachgeschoss entsteht zudem ein besonders ruhiges und gemütliches Wohnambiente.
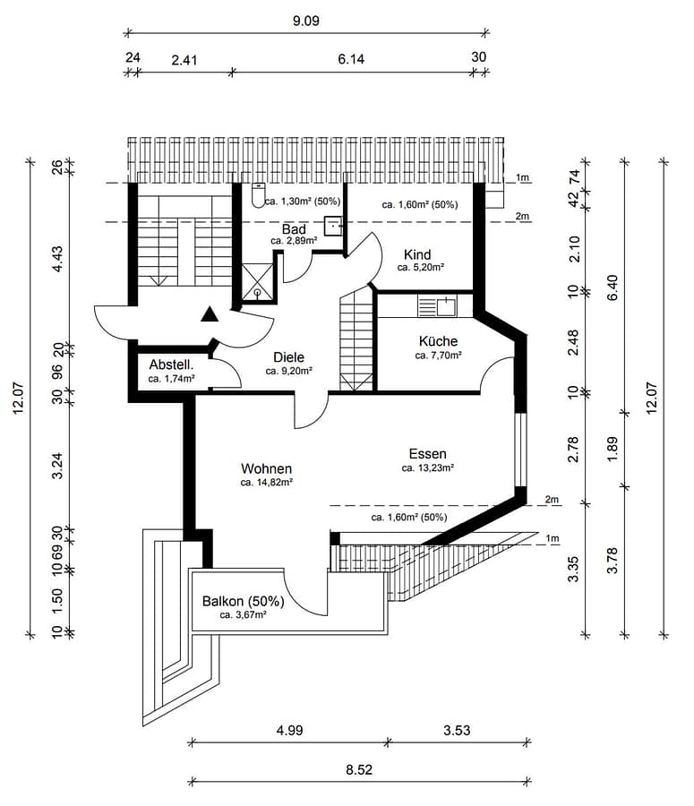
Diele
Abstellkammer
Wohn- und Essbereich
Balkon
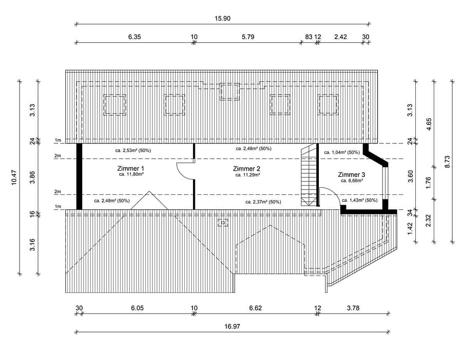
Schlafzimmer/Kinderzimmer
Badezimmer mit Regendusche und Fenster
Badezimmer mit viereckiger Badewanne und Fenster
Schlafzimmer 1
Schlafzimmer 2
Es liegt ein Energieausweis zur Besichtigung vor.
Die Käufer-Provision beträgt 3,57 % vom Kaufpreis inkl. MwSt. Die Käufer-Provision ist verdient und fällig mit notarieller Beurkundung. Der Immobilienmakler hat einen provisionspflichtigen Maklervertrag in gleicher Höhe mit dem Verkäufer abgeschlossen
Wir bemühen uns, Ihnen alle Angaben vollständig zu überlassen. Objektangaben beruhen auf den Angaben des Verkäufers. Wir übernehmen deshalb keine Haftung für diese Angaben.
Die Wohnung befindet sich in einer ruhigen Wohnstraße in Essen Schönebeck, unweit von Borbeck. Einkaufsmöglichkeiten wie Supermärkte und Bäckereien, Schulen sowie Kindergarten sind fußläufig erreichbar. Öffentliche Verkehrsmittel befinden sich in der Nähe, und der Bahnhof Essen Borbeck mit S Bahn Anschluss ist nur wenige Minuten entfernt. Die Lage verbindet ruhiges Wohnen mit guter Erreichbarkeit von Einrichtungen des täglichen Lebens und Verkehrsanbindungen.
Kindergarten 400 m | Grundschule 900 m | Hauptschule 1,26 km | Realschule 2 km | Gymnasium 1,70 km | Fernbahnhof 1,97 km | Autobahn 3,50 km | U/S-Bahn 2,97 km | Zentrum 7,50 km | Bus 140 m | Einkaufsmöglichkeiten 2,19 km | Gaststätten 150 m
Die ungefähre Position der Immobilie auf Google Maps ansehen (Link auf externe Website)